Dessinateur 3D
- conception 3D d'un immeuble de 6 appartements aménagés/meublés selon les souhaits des clients
- multiples dessins de modules en container aménagés : de 1 module HIGH-CUBE à bloc de 17 appartements
- réalisation d'un book A3 pour promotion-vente d'appartements
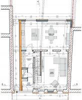
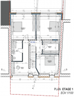
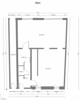
- conception technique complète en 3D sketchup d'un immeuble à ossature bois : 3 étages-6 appartements
- 16 couches/layout de l'ensemble du projet
- calculs des charges
- coupes diverses - exemple d'une réalisation 3D d'une maison mitoyenne 2 étages avec du "vivant"
- idem mais conforme au cahier des charges
- exemple d'une réalisation d'une maison en gros oeuvre, dont projection d'un aménagement en visite virtuelle 3D